ICU Productions
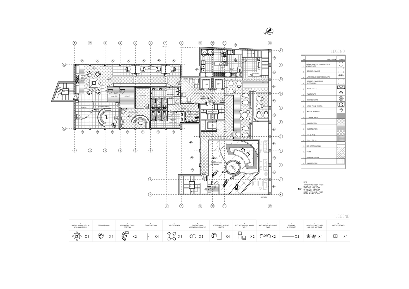
The aim of this project was to design a daughter company for Endemol Shine Group that would be situated in the heart of Dublin. Endemol Shine Group is a “global production powerhouse creating world class content for all platforms.” The company has headquarters all over the world, however Ireland does not represent the company yet. This project aims to create a unique identity for a TV production company which would specialise in broadcasting, filming and editing. A strong colour scheme was chosen to create dramatic and atmospheric interiors. Emphasis was also placed on acoustics and spacial planning. The development of the design came from disassembling a video camera. Cable ties found inside the camera became the basis for further development. The chosen building, Huguenot House on St.Stephen’s Green became a host for 2 TV studios, editing rooms, recording studios, offices, and social spaces such as a cafe and a restaurant.
